
Grundriss EG Wohnhaus

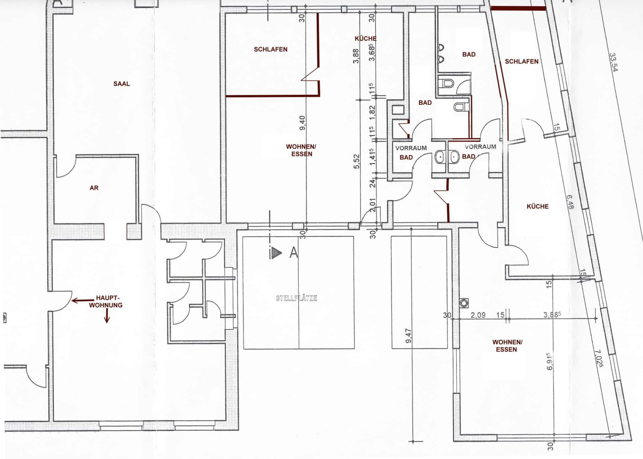
Grundriss OG Wohnhaus Plan 1

Grundriss OG Wohnhaus Plan 2

Grundriss Ferienwohnungen
Objektdaten
Kaufpreisvorstellung | 199.000 € |
Angebotsnummer | 1225 |
Wohnfläche | 507 m² |
Zimmer | 14 |
Grundstück | 2808 m² |
Maklerprovision | 3,57 % inkl. USt |
Energieausweis
-
Baujahr1945, Anbau 1968
-
WärmeträgerHeizöl
-
Endenergiebedarf241,3 kWh/(m²*a)
-
Endenergieverbrauch– kWh/(m²*a)
-
EnergieeffizienzklasseG
Großimmobilie mit vielfältigen Möglichkeiten (WG, Mehrgenerationenhaus, Seminar-/Atelierhaus etc.)!
-Beschreibung der Immobilie nach Angaben des Eigentümers bzw. Auskunftsberechtigten-
Die Hunsrückgemeinde Bundenbach mit ca. 850 Einwohnern liegt 400m über dem Meeresspiegel in einer Senke des Hunsrücks zwischen dem Idarwald und dem Soonwald direkt an der Hunsrück-Schiefer- und Burgenstraße. Bundenbach ist staatlich anerkannter Erholungsort und durch seine bedeutenden Sehenswürdigkeiten (Schmidtburg, Keltensiedlung Altburg) und weltberühmten Fossilienfunde ein beliebtes Ausflugsziel mit außergewöhnlichem Freizeitwert.
Bei der hier zum Verkauf stehenden Immobilie handelt es sich um eine ehemalige Gaststätte und Hotel. Der linke Gebäudeteil wurde um 1945 erbaut. Das angebaute Wirtschaftsgebäude wurde 1955 zur Gaststätte mit Fremdenzimmern um- und ausgebaut. 1961-65 wurde der heutige Saal und die Kegelbahn mit Gastbereich angebaut, 1990/91 durch einen Umbau die Aufteilung der Räume im Wohnhaus geändert und 2003 ehemalige Geschäftsräume zu Ferienwohnungen/Apartments umgebaut.
Heute wird das Haupthaus als großes Wohnhaus genutzt und die nebenliegenden zwei Apartments, die zuvor als Geschäftsräume, danach als Ferienwohnungen und zuletzt zur Festvermietung genutzt wurden, stehen seit ca. 1 Jahr leer.
Das Anwesen hat eine Gesamtwohnfläche von ca. 507 m², wovon ca. 194 m² auf die beiden Apartments und die Restfläche auf das Haupthaus entfällt.
Das Haupthaus unterteilt sich in Wohnräume im Erd- und Obergeschoss. Im Erdgeschoss befinden sich der geräumige Koch-, Ess- und Wohnbereich, Abstellraum, der große Saal/Mehrzweckraum (mit Terrassenausgang), der sich auch unterteilen ließe, Büro, Garderobe, WC/Waschraum, ein weiteres WC und Verkehrsflächen. Im Obergeschoss sind 6 Schlafzimmer, Ankleide, Waschraum und Badbereich untergebracht.
Die Deckenhöhen betragen 2,56-2,70 m im Erd- und 2,40-2,46 m im Obergeschoss.
Die ausbaufähigen Dachböden sind über eine feste Aufgangstreppe zu erreichen. Das Haus ist teilunterkellert.
Im Erdgeschoss befinden sich neben den genannten Wohnräumen noch der Heizungs- und Ölraum sowie die Garage.
Die beiden Apartments sind jeweils in Wohn-/Esszimmer, Küche, Schlafzimmer und Bad aufgeteilt.
Die Deckenhöhen betragen 2,89-3,06 m.
Die Apartments sind nicht unterkellert und mit einem Flachdach versehen.
Das Haupthaus befindet sich in gepflegtem Zustand. Die Apartments sind nach Schäden aufgrund unsachgemäßen Mietgebrauchs renovierungsbedürftig. Der Eigentümer hat bereits erhebliche Vorarbeiten zur Entkernung bzw. Renovierung geleistet.
Auf dem gemeinsamen Grundstück steht ein weiteres, nicht zu verkaufendes Wohngebäude, das im hinteren Bereich teilweise an das zu verkaufende Anwesen angebaut ist. Die beiden Einheiten sind im Grundbuch als Wohnungs- und Teileigentumseinheiten eingetragen.
Das ideell zu je ½ Anteil zu den Gebäuden gehörende Grundstück mit einer Gesamtgröße von ca. 5617 m² ist im Vorhofbereich geteert und im hinteren Bereich als idyllische, mit Bäumen bestandene Wiesenfläche gestaltet. An der westlichen Grundstücksgrenze verläuft ein Wirtschaftsweg, von dem das hintere Grundstück durch das vorhandene Tor befahren werden kann.
Es kann mit dem weiteren Eigentümer eine individuelle Vereinbarung der Grundstücksnutzung durch Festlegung sog. Sondernutzungsrechte getroffen werden.
Die zu verkaufende Gebäudefläche ist im Lageplan schraffiert gekennzeichnet.
Bei der zukünftigen Nutzung der Immobilie ist Flexibilität groß geschrieben. Ob Nutzung durch die Großfamilie, Mehrgenerationenhaus, Eigentümer-WG, Atelier- oder Seminarhaus, eine andere teilgewerbliche Nutzung – alles ist möglich!
Sie haben Fragen?
-
Diepmans Immobilien
-
Römerstr. 9
55624 Rhaunen -
06544 99 05 66
-
0171 798 85 52
-
info@diepmans.com









































































































